Lage
Kurzinfos + Preise
Beschreibung
Alle Räume
Freizeit
Druck
Haus anfragen
Dänemark Süddänemark - 6705 ESBJERG
Lage:
Diese Efterskole liegt in Esbjerg, dem größten Nordseehafen Dänemarks.
Das Gruppenhaus liegt im Süden Dänemarks, auf einem schönen, großen Grundstück. Eine große Spielwiese mit Fußballnetz und ein Beachvolleyballfeld befinden sich direkt hinter dem Haus.Insgesamt 66 Personen können im Haus untergebracht werden.
Alle Infos in Kürze:
Gruppenhaus Gruppenunterkunft Jugendfreizeit Gruppenreisen
Eine Efterskole in Esbjerg nur 6 Km von der Nordsee entfernt.
03453001 Gruppenhaus Bieringhus Efterskole
Lage: Dänemark, Süddänemark 6705 ESBJERG
"Unsere Meinung:" Eine kleine Efterskole nahe der Nordsee mit vielen Sport- und Spielmöglichkeiten im und am Haus.
 |
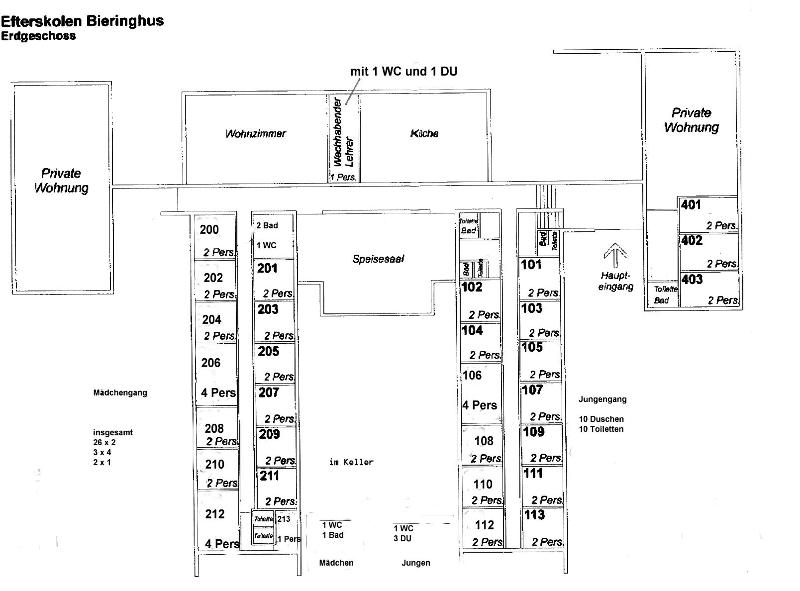
48-66 Schlafplätze in 31 Räumen
Räume: 26x2, 3x4, 2x1
|
 |
|
 |
|
 |
Toiletten: 10
|
 |
Duschen: 10
|
 |
Verpflegung: SV, HP, VP
|  |
Speise-/Aufenthaltsräume: 3
|
| Besonderheiten des Hauses: |
 |
nicht geeignet
|
 |
nein
|
 | erlaubt |  |
erlaubt
|
| Geeignet: |
Kinder Jugendliche Familien Erwachsene
Jugendfreizeiten Klassenfahrten Familienferien Studienreisen
|
|
 |
Grundstück: 20 ha
|
| Weitere Infos:
| Sporthalle, Sport-/Bolzplatz, Beachvolleyball, Dart, Billard,, Spielplatz, Spielwiese,
Tischtennisraum mit Billard, Dart
|
 | Meer: 6 km
|
|
|
|
Profi/ Gewerbeküche
(Kühlschränke, Tiefkühltruhen, Kartoffelschälmaschine, Abstellkammer) Waschmaschine und Trockner sind vorhanden.
|
| Ortsmitte: | 2,5 km |
| Supermarkt: | 2,5 km |
| Krankenhaus: | 2,5 km |
| Arzt: | 2,5 km |
Gruppenhaus Gruppenunterkunft Jugendfreizeit Gruppenreisen
03453001 Gruppenhaus Bieringhus Efterskole
Eine Efterskole in Esbjerg nur 6 Km von der Nordsee entfernt. |
Druckvorschau |
Diese Efterskole liegt in Esbjerg, dem größten Nordseehafen Dänemarks.
Das Gruppenhaus liegt im Süden Dänemarks, auf einem schönen, großen Grundstück. Eine große Spielwiese mit Fußballnetz und ein Beachvolleyballfeld befinden sich direkt hinter dem Haus.Insgesamt 66 Personen können im Haus untergebracht werden.
Küche:
Profi/ Gewerbeküche
(Kühlschränke, Tiefkühltruhen, Kartoffelschälmaschine, Abstellkammer) Waschmaschine und Trockner sind vorhanden.
Schlafplätze:
Schlafplätze:
66 Schlafplätze
in 31 Räumen
26x2, 3x4, 2x1
|
|
Die Zimmer sind mit Etagenbetten ausgestattet, und haben zumeist Tische und Stühle, sowie Regale auf den Zimmern.
|
Speise/ Aufenthaltsräume:
|
|
1 Aufenthaltsraum mit Billard im Keller (30 qm), 1 Speisesaal (140 Personen) 1 großer Aufenthaltsraum (120 Personen). 1 weiterer Aufenthaltsraum in der neuen Sporthalle.
|
Sanitär:
Toiletten:
10
|
|
|
Duschen:
10
|
|
|
Sporthalle:
| Eine neue Sporthalle gibt weitere Möglichkeiten der Freizeitgestaltung. In der Sporthalle befindet sich eine weiterer Aufenthaltsraum und zusätzliche Dusch- und Waschräume. |
Besondere Räume:
| Tischtennisraum mit Billard, Dart | |
Freizeit
Freizeitpark Sommerland Varde (23 km) bietet viel Spaß für Groß und Klein
Legoland in Billund, ca. 60 km entfernt
Bademöglichkeiten:
Meer: 6 km
Die Nordsee ist ca. 6 km entfernt.
Sportmöglichkeiten
Beachvolleyball, Dart, Billard,
Spielplatz
Spielwiese
Druck
Gruppenhaus Gruppenunterkunft Jugendfreizeit Gruppenreisen
03453001 Gruppenhaus Bieringhus Efterskole
Eine Efterskole in Esbjerg nur 6 Km von der Nordsee entfernt. |
Druckvorschau |
| Lage: | Dänemark, Süddänemark 6705 ESBJERG |
| Schlafplätze: |
48-66 Schlafplätze in 31 Räumen
26x2, 3x4, 2x1
|
| Speise-/Aufenthaltsräume: |
3 |
| Besondere Räume: | Tischtennisraum mit Billard, Dart |
| Toiletten: |
10
|
|
Duschen: |
10
|
| Bademöglichkeiten: |
Meer: 6 km
|
| geeignet für: |
Kinder Jugendliche Familien Erwachsene |
| Zweck: |
Jugendfreizeiten Klassenfahrten Familienferien Studienreisen |
| Grundstück: |
20 ha | | | | | | | | | | | | | | |
| Sporthalle: |
Ja |
| | | | | | | | | | | | | |
| Sport-/Bolzplatz: |
Ja |
| | | | | | | | | | | | | |
| Sportmöglichkeiten: |
Beachvolleyball, Dart, Billard, |
| | | | | | | | | | | | | |
| Spielwiese: |
Ja |
| | | | | | | | | | | | | |
| Spielplatz: |
Ja |
| | | | | | | | | | | | | |
| Pferde: |
Nein |
| | | | | | | | | | | | | |
| Bahnhof: |
|
| | | | | | | | | | | | | |
| Haltestelle: |
|
| | | | | | | | | | | | | |
| Nächster Ort: |
2,5 km |
| | | | | | | | | | | | | |
| Supermarkt: |
2,5 km |
| | | | | | | | | | | | | |
| Allergiker: |
nicht geeignet |
| | | | | | | | | | | | | |
| Alkohol: |
erlaubt |
| | | | | | | | | | | | | |
| Rauchen: |
erlaubt |
| | | | | | | | | | | | | |
| Haustiere: |
nein |
| | | | | | | | | | | | | |
| Verpflegung: |
SV, HP, VP
|
| | | | | | | | | | | | | |
| Sonstiges: |
|
| | | | | | | | | | | | | |
| Küche: Profi/ Gewerbeküche |
|
(Kühlschränke, Tiefkühltruhen, Kartoffelschälmaschine, Abstellkammer) Waschmaschine und Trockner sind vorhanden.
|
Lage:
Diese Efterskole liegt in Esbjerg, dem größten Nordseehafen Dänemarks.
Das Gruppenhaus liegt im Süden Dänemarks, auf einem schönen, großen Grundstück. Eine große Spielwiese mit Fußballnetz und ein Beachvolleyballfeld befinden sich direkt hinter dem Haus.Insgesamt 66 Personen können im Haus untergebracht werden.
Schlafplätze:
48-66 Schlafplätze in 31 Räumen
26x2, 3x4, 2x1
Die Zimmer sind mit Etagenbetten ausgestattet, und haben zumeist Tische und Stühle, sowie Regale auf den Zimmern.
|
Sonstiges:
Speise-/Aufenthaltsräume: 3
1 Aufenthaltsraum mit Billard im Keller (30 qm), 1 Speisesaal (140 Personen) 1 großer Aufenthaltsraum (120 Personen). 1 weiterer Aufenthaltsraum in der neuen Sporthalle.
|
|
Sanitärräume:
|
|
|
|
|
Anzahl der WCs: 10
|
|
Küche: Profi/ Gewerbeküche
|
|
(Kühlschränke, Tiefkühltruhen, Kartoffelschälmaschine, Abstellkammer) Waschmaschine und Trockner sind vorhanden.
|
|
Sporthalle
|
|
Eine neue Sporthalle gibt weitere Möglichkeiten der Freizeitgestaltung. In der Sporthalle befindet sich eine weiterer Aufenthaltsraum und zusätzliche Dusch- und Waschräume.
|
| Besondere Räumlichkeiten |
| Tischtennisraum mit Billard, Dart |
| |
|
Freizeit:
|
Freizeitpark Sommerland Varde (23 km) bietet viel Spaß für Groß und Klein Legoland in Billund, ca. 60 km entfernt
|
|
Bademöglichkeiten:
|
Meer: 6 km
Die Nordsee ist ca. 6 km entfernt.
|
|
|
|
|
|
|
|
|
|
Sport-/Bolzplatz/Sportmöglichkeiten
|
|
Beachvolleyball, Dart, Billard,
|
Sonstige Bilder
| Unsere Meinung: |
Eine kleine Efterskole nahe der Nordsee mit vielen Sport- und Spielmöglichkeiten im und am Haus.
|
Druckvorschau
Anfrageformular
Sie können auch eine Sammelanfrage abschicken. Dazu müssen Sie das Haus erst auf dem Merkzettel (rechts unter der Karte) stellen und dann können Sie mit "Mein Merkzettel" eine Sammelanfrage für mehrere Häuser abschicken.